




Development Land in Windmill Hill for Sale - £250,000
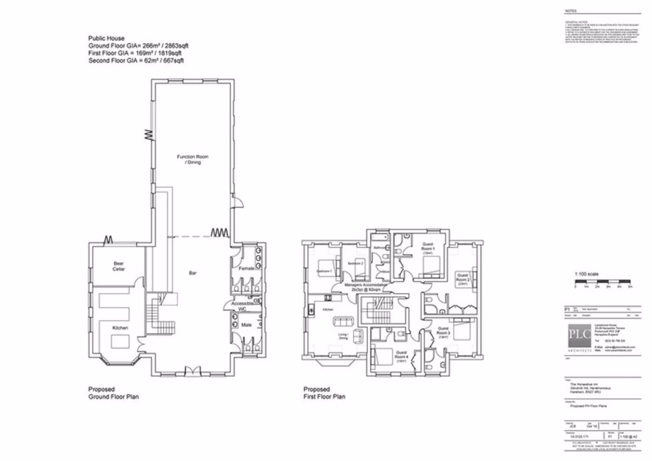
Comprehensive Planning Permission: The site comes with approved plans for a new-build public house, including manager's accommodation and letting rooms spread across three floors.
Development Land in Windmill Hill for Sale - £250,000
Description
Comprehensive Planning Permission: The site comes with approved plans for a new-build public house, including manager's accommodation and letting rooms spread across three floors.
Contact Agent
Smart Picks — Professionals Relevant to This Land
Based on this property's key features, here are the specialists you may want to consult as part of your due diligence: land agents, rural solicitors and planning consultants.

Land Agents
Essential for navigating the land market, finding buyers, and securing the best price.

Rural Solicitors
Significant investment (£250K+) requires legal expertise for conveyancing, title checks, and transaction security.

Planning Consultants
Planning-sensitive site needs expert guidance for applications and development strategy.
Location
Windmill Hill